For more information or to schedule a showing, click here.
Realtor: Liedtke, Justin

1393 County Road 4940
Quitman, Tx 75783

Price: $525,000
Property Type: farms_ranches
MLS #: 25016015
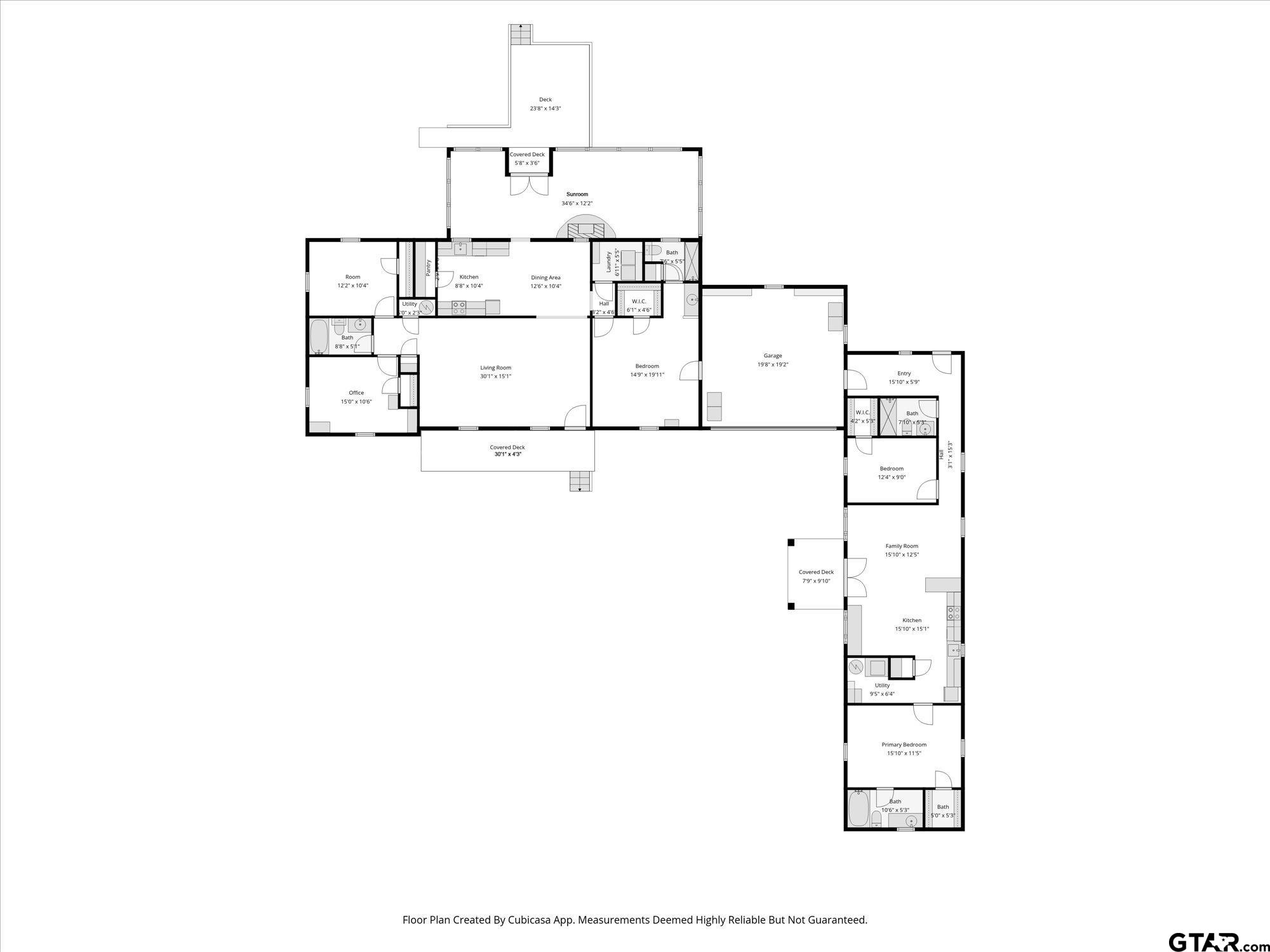
It's a TWO-FER! Perfect for the horse lover or homesteader, but also for live-in multi-generational families. Keep everybody close or make some rental income on this fabulous property with TWO residences connected via a shared garage perfectly situated on 22+ acres that is fenced and cross-fenced for your animals and projects. Fullsized stable barn and tack room with electric and water, plus a workshop area. Plus an RV electrical hookup. Multiple pastures have their own water lines, plus two custom built loafing sheds. A handy centrally located water manifold for shutoffs and access, And, electrical hookup for RV/trailer. Main house is a 3 bed, 2 bath, with two living areas plus handicap ramp access and grab bars in bath. Secondary residence is a 2017 addition featuring 2 beds, 2 baths on slab. Both with great kitchens, baths, and porches. Natural creek runs through the back of the property. Approximately half is pasture land and fenced, the other half is wooded and ready for your creativity! Seller says the wooded land near the creek also makes for great hunting. Come check it out!
Area: Wood
Year Built: 1988
Bedrooms: Five
Bathrooms: Four+
Garage: 0
Acres: 22.59
Virtual Tour: Click here to view
CONSTRUCTION : Wood /Frame
CONSTRUCTION : Siding
CONSTRUCTION : Metal
COOLING : Central Electric
COOLING : Window Unit(s)
DINING AREAS : Formal Living Combo
DINING AREAS : Breakfast Bar
FENCING : Barbwire Fence
FIREPLACE : Wood Burning
INTERIOR : Paneling
INTERIOR : Ceiling Fan
INTERIOR : Attic Stairs
INTERIOR : Blinds
INTERIOR : Satellite Dish
KITCHEN EQUIPMENT : Range/Oven-Electric
KITCHEN EQUIPMENT : Dishwasher
KITCHEN EQUIPMENT : Disposal
KITCHEN EQUIPMENT : Microwave
KITCHEN EQUIPMENT : Pantry
KITCHEN EQUIPMENT : Refrigerator
KITCHEN EQUIPMENT : Ice Machine
OUTBUILDINGS : Storage Building(s)
OUTBUILDINGS : Metal Outbuilding(s)
OUTBUILDINGS : Stable(s)
OUTBUILDINGS : Tack Room
OUTBUILDINGS : Barn
OUTBUILDINGS : Work Shop
OUTBUILDINGS : Other/See Remarks
DRIVEWAY : Natural
DRIVEWAY : Gravel
FENCING : Chain Link Fence
FLOORING : Carpet
FLOORING : Tile
FLOORING : Decorative Concrete
FLOORING : Vinyl
KITCHEN EQUIPMENT : Oven-Electric
KITCHEN EQUIPMENT : Cooktop-Electric
STYLE : Ranch
FENCING : Pipe
CONSTRUCTION : Concrete Based Siding
OUTBUILDINGS : Additional Residence/Rmrk
POOL/SPA : None
FENCING : Dog Run/Kennel
FIREPLACE : Stone
FIREPLACE : Direct Vent
INTERIOR : Vaulted Ceilings

Courtesy: Liedtke, Justin • Abide Realty LLC • 903-920-3871

The data relating to real estate for sale on this website comes in part from the Internet Data Exchange (IDX) of the Greater Tyler Association of REALTORS Multiple Listing Service. The IDX logo indicates listings of other real estate firms that are identified in the detailed listing information. The information being provided is for consumers' personal, non-commercial use and may not be used for any purpose other than to identify prospective properties consumers may be interested in purchasing. This information is deemed reliable, but not guaranteed.

This content last refreshed on 11/03/2025 05:30 AM. Some properties which appear for sale on this web site may subsequently have sold or may no longer be available.